In October 2022, the City hosted a public informational meeting to share project background, facility needs, concept designs, costs, and funding details for the proposed new fire station. On November 8, 2022, voters approved the fire station bond referendum, authorizing the City to move forward with financing and next phases of design and construction.
Fire Station Project
Share Fire Station Project on Facebook
Share Fire Station Project on Twitter
Share Fire Station Project on Linkedin
Email Fire Station Project link
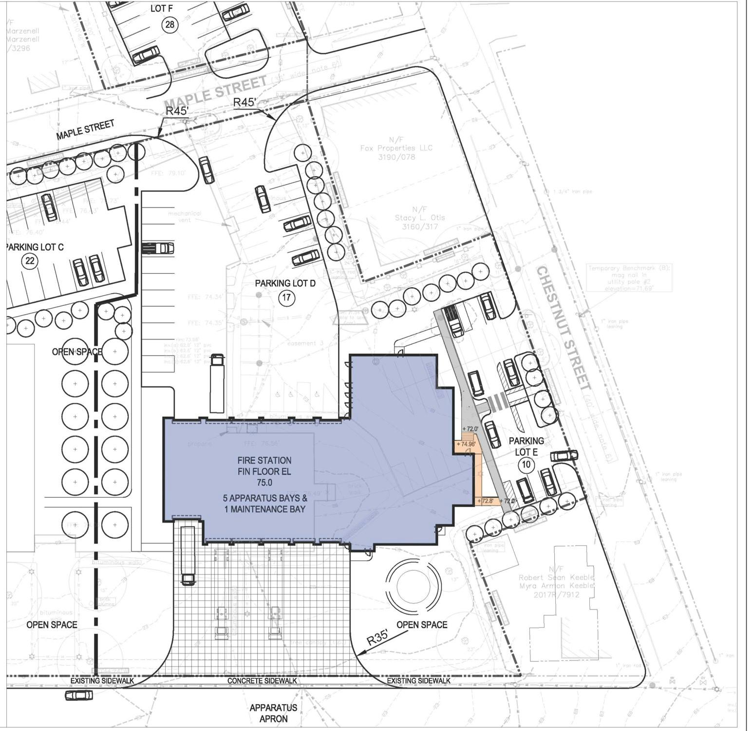
On November 8, 2022, voters approved a $13.05 million bond referendum for the design, construction, and equipping of a new fire station. The project will replace the current fire station at 864 High Street and will be located at the north end of the former Morse High School property on High Street. The current fire station, which opened in 1958, was prioritized for replacement due to the level of deficiencies, the needs of the department, and the location of the site.
On November 8, 2022, voters approved a $13.05 million bond referendum for the design, construction, and equipping of a new fire station. The project will replace the current fire station at 864 High Street and will be located at the north end of the former Morse High School property on High Street. The current fire station, which opened in 1958, was prioritized for replacement due to the level of deficiencies, the needs of the department, and the location of the site.
Page last updated: 20 Jan 2026, 09:04 AM
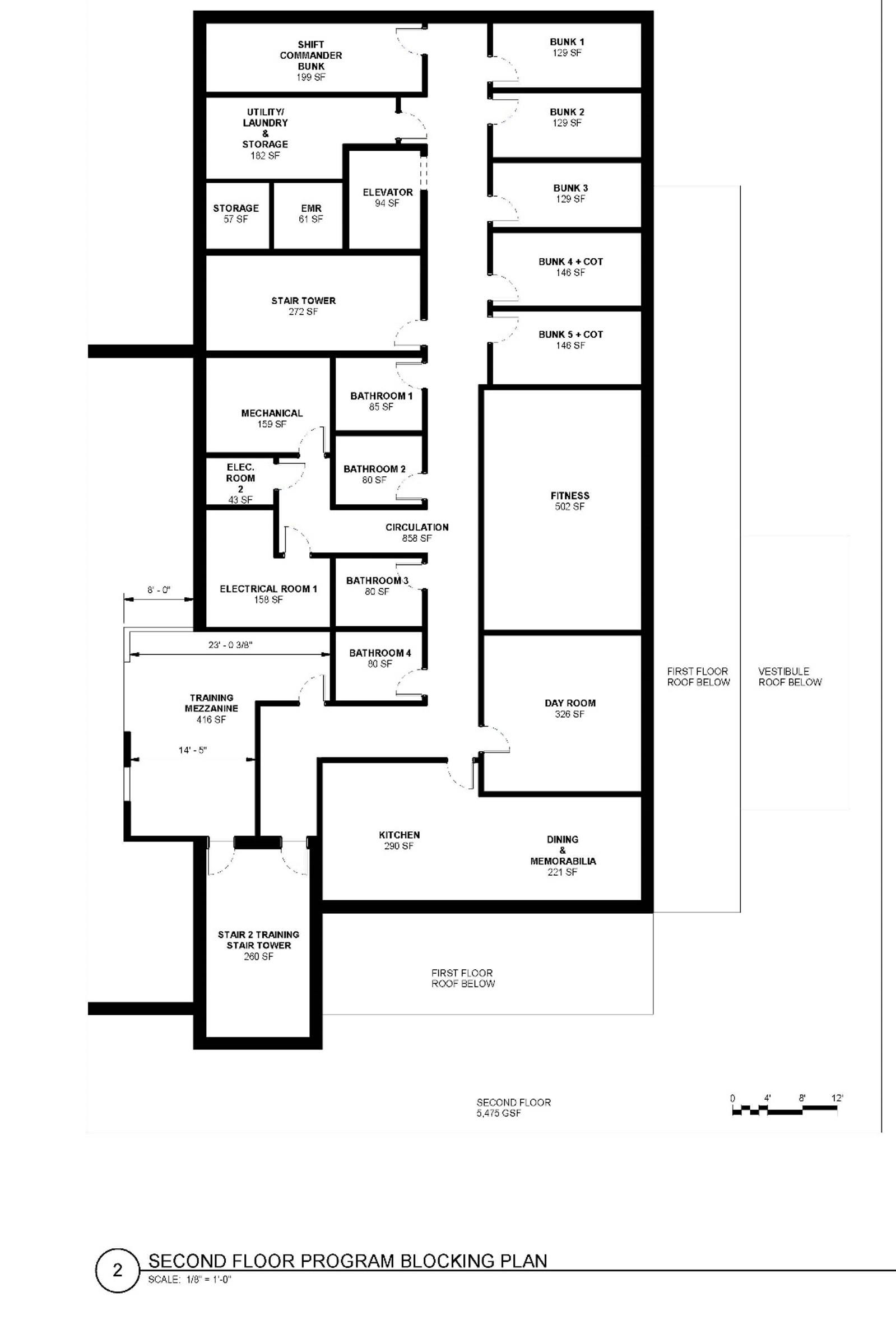
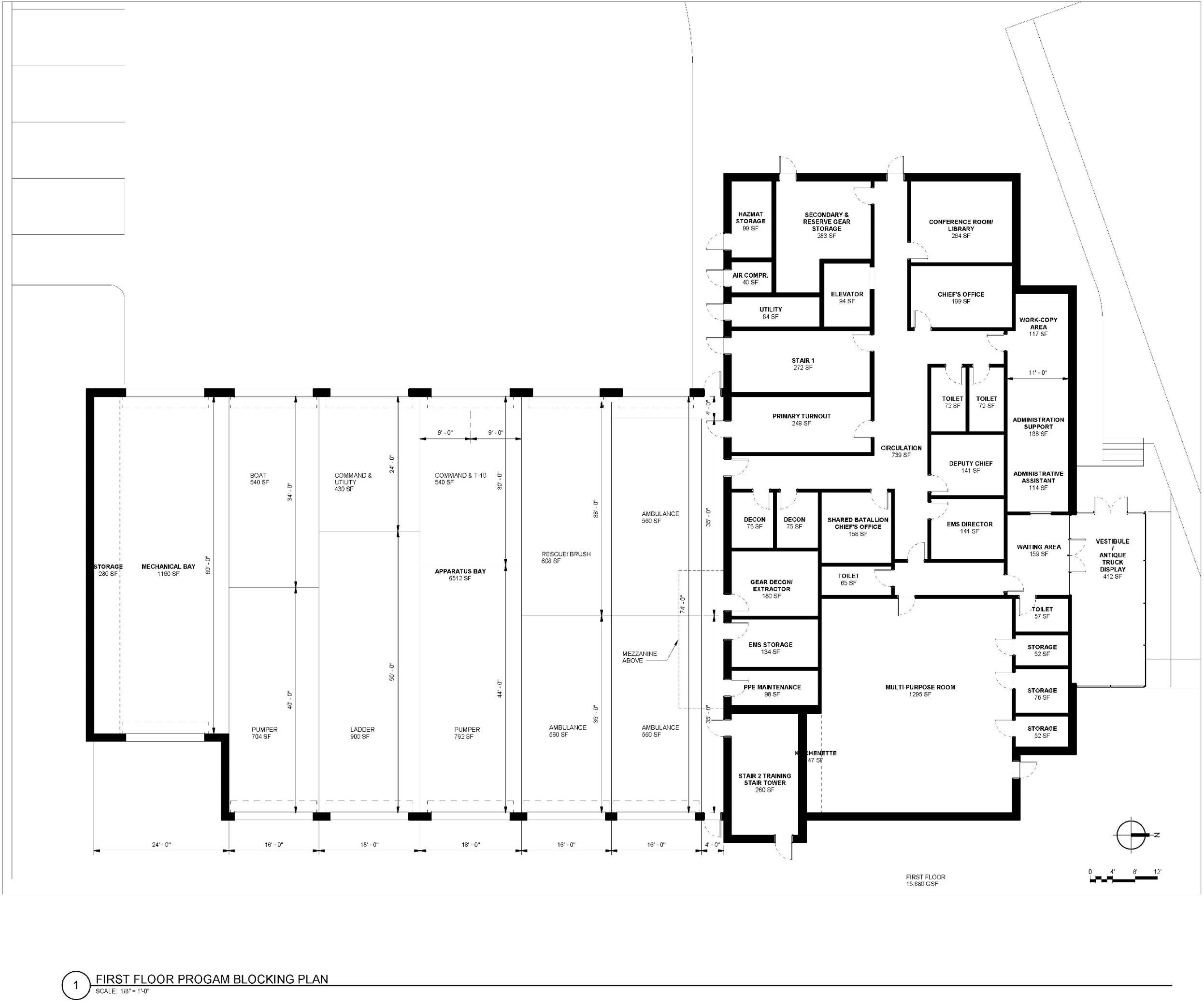
Renderings and Site Plans
Public Events
-
October 27 2022
-
October 02 2024
-
January 28 2026
Who's Listening
-
-
Phone 207-443-8330 Email mmeyers@cityofbathmaine.gov
Project Timeline
-
2021
Fire Station Project has finished this stageIn 2021, the City advanced planning for a new fire station through two key studies. In May, the Morse High School Reuse Study identified co-locating a new fire station on or near the former Morse High School site as a preferred reuse option. In October, a Fire Station Residential Analysis evaluated neighborhood impacts, site compatibility, and residential considerations, helping inform future site selection and design decisions.
-
Early 2022
Fire Station Project has finished this stageIn early 2022, the City of Bath advanced the fire station project through a series of City Council workshops and public meetings. In June, Council held a dedicated workshop to review fire station needs, preliminary concepts, and next steps. In July, concept drawings and probable cost estimates were released, providing clearer scope and budget information. On August 3, City Council approved placing a bond referendum before voters, formally advancing the project to a public decision.
-
Late 2022
Fire Station Project has finished this stage -
2023
Fire Station Project has finished this stageFederal Funding Secured: In June 2023, U.S. Senator Susan Collins announced that she secured approximately $13.85 million in federal funding through the Fiscal Year 2024 Agriculture and Rural Development appropriations bill for seven Maine fire stations and emergency services facilities, including $1.75 million for the City of Bath’s new Fire and EMS Station. This federal contribution is intended to reduce the City’s borrowing burden and support construction of the new station on the former Morse High School site.
-
2024
Fire Station Project has finished this stageIn 2024, the City advanced the fire station project into formal design and project management phases. In February, City Council approved Colliers as the Owner’s Representative to oversee project delivery. In June, Council approved Context Architecture to provide professional design services following a competitive RFP process. In October, updated concept plans were presented to City Council, illustrating site layout, building design, and key features that reflect operational needs, safety requirements, and prior community and Council input.
-
2025
Fire Station Project has finished this stageIn 2025, the fire station project advanced through critical pre-construction milestones. Two independent cost estimates were completed and reconciled to confirm the project remained within budget. The Maine DEP permit application was submitted, and design of the Fire Station Alerting System progressed through May. The project entered the Construction Documents phase, with detailed drawings and specifications finalized in May and June. The team coordinated with Central Maine Power on utility upgrades and received site plan approval from the Planning Board at its May meeting.
-
January 2026
Fire Station Project is currently at this stageFollowing the selection of Benchmark Construction as the construction bid winner in late 2025. The City will hold a groundbreaking ceremony on January 28, 2026. The event will mark the official start of construction on the new fire station and the transition from design to on-site work.




